بررسی طرح امکان افزایش برداشت مخازن TK-8010 پتروشیمی فرساشیمی
دو تانک همسان 8010 با مجموع ظرفیت 20000 متر مکعب به عنوان مخازن نگه داری محصول نهایی واحد MEG در محل سایت پتروشیمی فرساشیمی وجود دارد که به وسیله یک خط به 3 پمپ موازی جهت بارگیری محصول به کشتی متصل می باشد. طبق استعلام صورت گرفته از کارشناسان واحد، برای جلوگیری از پدیده کاویتاسیون، ارتفاع مایع درون مخزن نباید از 13 درصد کمتر شود. هدف از انجام این مطالعات، کاهش میزان حداقل ارتفاع مایع درون مخزن که معادل با 2600 متر مکعب می باشد، بوده است. در همین راستا روش های زیر مورد بررسی قرار گرفتند.
پایین آوردن نازل داخلی مطابق با استاندارد ANSI/ HI 9.8
با توجه به محاسبات صورت پذیرفته ارتفاع مایع درون مخزن برای حالتی که سه پمپ در سرویس باشند محاسبه شده است، با توجه به مقدار ارتفاع محاسبه شده این نتیجه حاصل شد که این روش برای بهبود عملکرد تانک 8010 کارایی ندارد.
اصلاح نازل داخلی بر اساس شرایط عملیاتی
ارتفاع مناسب با توجه به جلوگیری از رخ دادن دو پدیده کاویتاسیون و ایجاد ورتکس محاسبه گردید.
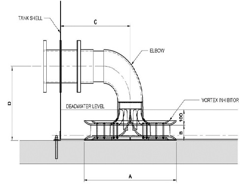
استفاده از VORTEX INHIBITOR
با توجه به محاسبات صورت پذیرفته در رابطه با این روش و مقایسه آن با روش اصلاح نازل داخلی بر اساس شرایط عملیاتی و با در نظر گرفتن مینیمم مقدار هزینه صورت پذیرفته برای انجام این کار، انتخاب این روش که باعث می شود کمترین ارتفاع سیال درون مخازن قرار گیرد به عنوان روش پیشنهادی شرکت تارا فرآیند تهران انتخاب شد و به شرکت پتروشیمی فرساشیمی اعلام گردید.
